
关于卫生院病房呼叫的系统方案,主要为实现护士站和病房之间的双工呼叫通话,当病人需要时可通过病床和卫生间紧急呼叫,护士站主机可提示相应呼叫的房间和床号,医护与病患之间快速沟通,得到及时有效的帮助,减轻护理人员工作强度。
查看详情
医护呼叫信息系统主要由护士控制系统主机、床头分机、走廊显示屏、卫生间防水紧急呼叫按钮等设备构成。专门用于医院护士与病床病人之间的呼叫、对讲,是医院实现信息化、现代化管理的重要组成部分,可以有效地提升护理院的形象,强化机构管理,保证服务质量。
查看详情
养老院呼叫系统主要用于养老院护理区,沟通住院患者与医护人员的联系,提高养老院的医疗护理水平,降低护理人员的劳动强度,使患者能够获得良好及时的医疗护理服务。
查看详情- 165
医用呼叫对讲系统是现代化医院提升服务效率、优化患者体验的关键智能化设施。它构建了患者与医护人员之间快速、准确的沟通桥梁,尤其在病房、急诊、ICU等区域发挥着不可替代的作用。一个高效可靠的系统,其成功首...
查看全文 - 336
数字型呼叫对讲主机是现代医疗机构常用的通讯设备,它能够实现病床与护士站之间的快速联络,提高医护响应效率。下面我就来详细介绍这款设备的使用方法。 一、设备安装 首先需要选择合适的安装位置,通常建议安装...
查看全文 - 458
医用呼叫对讲系统是医院和养老院等医疗场所的重要设施,用于实现患者与医护人员之间的快速沟通。在系统安装过程中,电源线的选择直接关系到系统的稳定性和安全性。以下是医用呼叫对讲系统中电源线选择的关键要点...
查看全文 - 854
医用呼叫对讲系统的安装关系到医院日常护理工作的高效性和病患的安全。在这一过程中,首先需要进行设备布置及线路敷设,以确保系统的顺畅运行。呼叫系统的主机通常被安装在护士站墙壁上,距地面高度约为1.4米,方...
查看全文 - 1012
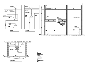
医院呼叫系统在医用工程中也是有着重要地位,它直接关系到医院内部的通讯和工作顺畅。那么医用主机如何进行接线的呢? 根据上图所示,接线需要使用铜芯截面积不小于0.4平方毫米的二芯电线,确保信号传输的稳定性...
查看全文 - 4695
医用呼叫器主要安装在病房设备带上,主要用于呼叫。当患者有任何问题时,他们可以通过呼叫器向主机发出信号。分机手柄上的按钮可以进行呼叫,主机接受患者呼叫信息,方便医务人员找到相应的床号并提供相应的服务...
查看全文
标久医用呼叫系统








































